-
1 bedroom 1 bath workforce optional porch -
2 bedroom 2 bath with common area and kitchen double master -
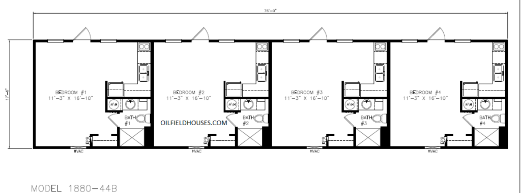
4 bedroom 4 bath oilfield workforce housing -
5 bedroom 5 bath oilfield workforce housing -
4 bedroom 4 bath private room with kitchen -
4 bedroom 4 bath private room with kitchen -
4 bedroom 4 bath private rooms with separate kitchen entrance -
4 bedroom 4 bath adjoined with separated kitchen -
4 bedroom 4 bath private rooms and kitchenette -
4 bedroom 4 bath private rooms with kitchenettes -
duplex workforce housing 4 bedrooms 4 bathrooms 2 kitchens -
5 bedroom 5 bathroom workforce housing with common area and kitchen -
5 bedroom 5 bathroom private entrances with separated kitchen -
5 bedroom 5 bathroom private entrances no kitchen -
5 bedroom 5 bathroom private rooms with kitchenettes -
7 bedroom 7 bathroom no kitchens -
8 bedroom 4 bathroom full kitchen and common area with 2 washers and 2 dryers
 Call US TO BUY: +1(806)559-6196
We bring you the best first hand supplier when it comes to Oilfield Houses, Modular homes and many more.

