Offices with work sleep options.
1-5 bedrooms plus office area and even conference areas.
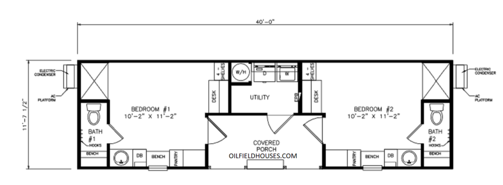
You can have offices that allows you to work and sleep, cook and clean, washer and dryer included and a full kitchen or omit all of that and just have rooms. mud logger supervisor tool pusher crew quarters
Mud-loggers offices, engineers, mechanics, crew, well site employees, drillers, rough necks, greenhorns, and more can all work in offices or sleep in these houses.
managers offices, supervisors, visitors and office personnel can use the unit for work and also stay over and sleep. ranging from 12×40 to 18×80 ft we can accommodate your team.
work sleep floor plans offices and bedrooms with full kitchens (mud logger supervisor tool pusher crew quarters).





A mud logger office camp home is a temporary residence for mud loggers,
who are responsible for monitoring the drilling process and collecting data on the formation being drilled. Mud loggers typically live in these camps for several weeks or months at a time, and they often work long hours.
Mud logger offices and camp homes are typically located near the drilling site, and they are often made up of a series of trailers or cabins.
The homes are usually equipped with basic amenities, such as a kitchen, bathroom, and sleeping quarters. Mud loggers often share these homes with other mud loggers, and they may also have to share common areas, such as a dining hall and recreation room.
Living in a mud logger office camp home can be challenging, as the homes are often located in remote areas and the work can be demanding. However, mud loggers often form close bonds with their fellow workers, and they can find the experience to be rewarding.
Here are some of the benefits of living in a mud logger supervisor tool pusher crew quarters
office camp home:
You will be able to save money on housing costs. Mud logger camp homes are typically much cheaper than renting or buying a home in a city.
You will be able to meet new people. Mud logger camps are a great place to meet people from all over the world.
You will be able to experience a new culture. Mud logger office crew camps are often located in remote areas, where you will be able to experience a different way of life.
You will be able to learn new skills. Mud logger crew quarters camps are a great place to learn new skills, such as how to operate heavy machinery and how to work in a team. and balance work life with a versatile office space.
Overall, living in a mud logger crew quarters camp home can be a positive experience. However, it is important to be aware of the challenges before you decide to live in one.
ranging in sizes and accommodations these oilfield housing units provide affordable solutions to well site personal housing issues.
1-8 room office oilfield houses are available to buy from us ask for info and pricing on workforce housing, oilfield mancamps, bunk houses, etc. .



We bring you the best first hand supplier when it comes to Oilfield Houses, Modular homes and many more.

