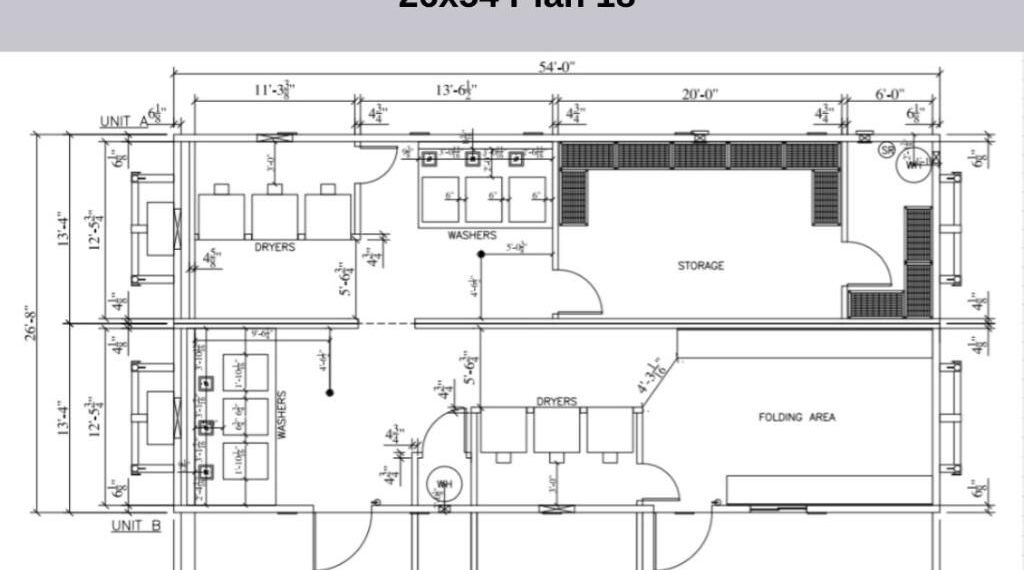
Laundry Commercial Unit (26×54) – Efficient Laundry Solutions for Your Workforce
At Oilfield Houses, we understand the importance of keeping your workforce clean and comfortable, especially in remote oilfield locations. Traditional laundry solutions can be time-consuming and inconvenient. That’s why we offer the Laundry Commercial Unit, a functional 26×54 prefabricated building designed to streamline laundry operations on your land. This eliminates the need to rely on shared facilities or coin-operated laundromats, giving your crew convenient access to on-site laundry services.
Contact us for pricing at 210-887-2760

Move-In Ready Laundry Facility for Your Workforce
The Oilfield Houses Laundry Commercial Unit offers a significant advantage over used mobile homes or manufactured homes. This unit arrives fully assembled and ready for immediate use, saving you valuable time and resources. Unlike used options, our Laundry Commercial Unit is brand new, ensuring a clean and functional laundry facility for your workforce.
Contact us for pricing at 210-887-2760
Key Features of the Oilfield Houses Laundry Commercial Unit
- Dedicated Laundry Space: This unit provides ample space for installing commercial-grade washers and dryers, catering to the laundry needs of your entire workforce.
- Durable Construction: Built to last, the Oilfield Houses Laundry Commercial Unit is constructed with high-quality materials to withstand the demands of continuous use.
- Move-In Ready: The unit arrives fully assembled and ready for immediate use, eliminating construction delays and getting your on-site laundry services up and running quickly.
- Customization Options: Oilfield Houses offers customization options to tailor the Laundry Commercial Unit to your specific needs. This could include adding utility hookups, ventilation systems, or additional storage space.
Contact us for pricing at 210-887-2760
Limited Units Available: Secure Your Laundry Commercial Unit Today
The Oilfield Houses Laundry Commercial Unit is a popular choice for oil and gas companies looking to streamline laundry operations and improve the overall experience for their workforce. There are only a limited number of units available for sale, so don’t miss out on this opportunity to provide a convenient and efficient laundry solution on your land.
Contact Oilfield Houses Today to Learn More
Let Oilfield Houses be your trusted partner for all your oilfield housing and amenity needs. Our team of experts is here to answer any questions you may have and help you find the perfect solution for your land. Contact us today to discuss your requirements and learn more about the limited-time offer on the Laundry Commercial Unit.




We bring you the best first hand supplier when it comes to Oilfield Houses, Modular homes and many more.

