www.oilfieldhouses.com READY TO WORK. Available for shipment to your location NOW.
www.oilfieldhouses.com/ bunk houses and buildings are a long term investment … offices and hotel style trailer homes perfect for your workforce or rentals.
bunk house trailer, tool pusher house, Oil and Gas industry tool pusher house. oilfield…
Wellsite Trailers, Modular Building, Portable Offices, Worksite …
www.oilfieldhouses.com Companies looking for portable buildings such as oilfield trailers, wellsite … Wellsite Trailers, Trailer Houses, Modular Base Camps, Portable Offices and More.
Oilfield Housing Floor Plans
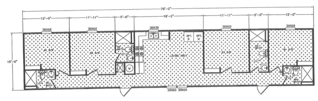
2 BEDROOM 3 BATH WITH OFFICE 9 BEDROOM 6 BATH4 BEDROOM 4 BATH DOUBLEWIDE 5 BEDROOM 4 BATH 2 BEDROOM 3 BATH WITH OFFICE
1 BEDROOM 1 BATH WITH A DEN2 BEDROOM 3 BATH WITH OFFICE3 BEDROOM 3 BATH WITH OFFICE7 BEDROOM 7 BATH
MOBILE HOMES DIRECT A FACTORY DIRECT DEALERSHIP
806-559-6196 STANDARD FEATURES
OPTIONS
Quality Solutions for the
Oilfield and Gas Industry we provide Rugged Housing solutions for the Oil field and Gas Industry and can typically build and deliver in 30 days or less. Oilfieldhouses.com understands the energy sector’s demand for tough, quality housing solutions delivered in short order. Transportable offices, living quarters and self-sufficient work/live environments can be designed to your specifications and constructed to be delivered to your site on your schedule. Please call our Industrial Division, 806-559-6196 for additional information about how we can design and build exactly what you need.
AVAILABLE OPTIONS
TOP
9 BEDROOM 6 BATH
TOP
4 BEDROOM 4 BATH DOUBLEWIDE
TOP
5 BEDROOM 4 BATH
TOP
2 BEDROOM 3 BATH WITH OFFICE
TOP
1 BEDROOM 1 BATH WITH A DEN
TOP
2 BEDROOM 3 BATH WITH OFFICE
TOP
2 BEDROOM 3 BATH WITH OFFICE
TOP
2 BEDROOM 3 BATH WITH OFFICE
TOP
3 BEDROOM 3 BATH WITH OFFICE
TOP
2 BEDROOM 3 BATH WITH OFFICE
TOP
2 BEDROOM 2 BATH
TOP
2 BEDROOM 2 BATH
TOP
2 BEDROOM 1 BATH WITH OFFICE
TOP
1 BEDROOM 1 BATH
TOP
1 BEDROOM 1 BATH
TOP
2 BEDROOM 2 BATH WITH OFFICE
TOP
2 BEDROOM 2 BATH WITH OFFICE
TOP
4 BEDROOM 4 BATH WITH COMMON AREA
TOP
4 BEDROOM 4 BATH DELUXE
TOP
6 BEDROOM 3 BATH
TOP
2 BEDROOM 2 BATH WITH DEN
TOP
2 BEDROOM 2 BATH WITH DEN
TOP
2 BEDROOM 1 BATH WITH DEN
TOP
2 BEDROOM 3 BATH WITH OFFICE
TOP
2 BEDROOM 3 BATH WITH A DEN
TOP
7 BEDROOM 7 BATH
TOP TOP
oilfield homes for sale – camp houses – manufactured homes/mobile homes. These homes are for commercial use or residential use. You can buy for your business or personal. Oilfield / Workforce Accommodations Oil / Gas Worker Living Accommodations. wellsite trailers are an ideal modular solution for industrial workforce oilfield housing accommodations in remote locations. WE REPRESENT: Oak creek Homes – Legacy Housing – Champion Homes – Oilfield rig trailers – Man camps –
multi unit housing- 3 plex 4 plex more plex… up to 7 bedrooms 7 baths..
806-559-6196
When your workforce needs a comfortable home away from home, look no further. Our Workforce Accommodations are here to take care of your housing & business needs.Whether you call them wellsite trailers, worksite shacks, trailer houses, mobile accommodations or any other term… we call them rugged, affordable and … Wellsite Trailers, Shacks and Accommodations, Oilfield Trailers … Companies looking for portable buildings such as oilfield trailers, wellsite trailers, forestry or mining accommodation now … Home · About Us … Wellsite trailers (also referred to as wellsite shacks) have come a long way in the last few years. Our high quality, energy efficient workforce/oilfield houses are built to meet any oilfield workforce. We specialize in floor plans with separate office spaces, living headquarters and bunk rooms. We will even take the hassle out of the delivery and set up process as well. We offer an affordable discount buying experience where you can trust your purchase and the quality you deserve. When time and money is of the essence, we are here to fulfill your workforce team or family housing needs. Call today to get a quote on any of our industrial floor plans. Eagle Ford Shale Location
Call US TO BUY: +1(806)559-6196
The Barnett Shale
Just west of the Tyler area in North-Central Texas lies the Barnett Shale, a hydrocarbon-producing geological formation of great economic significance to Texas. It consists of sedimentary rocks and the productive part of the formation is estimated to stretch from the city of Dallas west and south, covering 5,000 square miles and at least 24 counties.
Experts claim that the Barnett Shale is the largest onshore natural gas field in the United States. The field name for the productive portion of the Barnett Shale formation has been designated as the Newark, East Field by the Texas Railroad Commission.
806-559-6196
The Following Texas Counties are considered part of the Eagle Ford Shale formation: Atascosa County TX Cities Charlotte Jourdanton Lytle (partially) Pleasanton Poteet Towns Christine Unincorporated places Campbellton Leming McCoy Peggy Rossville Kyote La Parita Bee County Dewitt County Dimmitt County Frio County Gonzales County Karnes County LaSalle County Lavaca County Live Oak County Maverick County McMullen County Webb County Wilson County
Bakken shale is located in
- Daniels County MT.
- Dawson County MT.
- Fallon County MT.
- Garfield County MT.
- McCone County MT.
If you’re interested in oilfield housing in the following locations, please contact us:
806-559-6196
rig trailers,Container Quarters for Sale Army Container Camps – Oil Rig trailers – Construction Site Accommodation Camps Construction Site Camps, Homes, Living & Office Containers Accommodation container camps for oil field areas and other remote oilfield camp areas, wellsite trailers are an ideal modular solution for industrial workforce oilfield housing accommodations in remote locations Oilfield Dog Houses please call us at 806-559-6196
For the best Great oilfield house. If you are looking for a job in the south Texas oilfields you need a place to live while you work.Manufactured Home For The Oil Fields! … Whether you need 1 or 100 homes we have them. Oilfield Jobs are on the rise. Get hired! Home in Carrizo Springs Eagle ford shale oil area homesCastroville, mcallen, floresville, pleasanton, Poteet etc…. looking for oilfield housing? man-camps? oil-camps? multiple unit housing?, or just a home for your or your family near your new job in the oilfields of South Texas oilfield-homes-houses-containers-storage-quarters-sleepers-camps-jobs oilfield Mobile and Modular housing Solutions
SPECIAL BULK DISCOUNTS FOR Oilfield housing solutions 4 PLEX WITH SEPARATE EXTERIOR ENTRANCES AND COMMON AREA.
Factory Direct Oil Field Housing
Modern, comfortable homes for those working in the oil fields and moving to the area.
Relocate to South Texas Oil field Areas
Housing available. Land help.
call 806-559-6196 today
4 bedroom 4 bath Floor plan with exterior doors for each unit and a common area with kitchen.
You are not going to believe how cheap this 4-plex oilfield work crew house is!

3 bedroom 2 bath Floor plan
806-559-6196
Call 806-559-6196
You can buy trailer houses at cheap, factory direct pricing. No BS, Call 806-559-6196
Need a house to stay in while you work?
THE TEXAS EAGLE FORD SHALE OPERATIONS CHOICE FOR HOUSING SOLUTIONS
We can help you acquire the best deal on housing for your oilfield crew and family homes.
Oilfield/Industrial
Oak Creek Homes designs and builds quality solutions for a broad range of industrial uses including the oil field.
Transportable offices, living quarters and self sufficient work/live environments can be designed to your specifications and constructed to be delivered to your site on your schedule.
Please call our main office at
806-559-6196
WE ARE CONVENIENTLY LOCATED SOUTH OF SAN ANTONIO ON HWY 181
for additional information about how we can design and build exactly what you need.
Take a look at the components that make-up our heavy duty “ruggedized” construction.
12″ Steel I-Beam for maximum strength and durability
Extra length reinforce tow bar hitches
19/32″ tongue and groove OSB flooring
Additional outriggers
Oversized steel exterior doors
Fluorescent light fixtures
Steel mesh wire “underbelly”
2″x4″ sidewall studs, 16″ on center
2″x6″ floor joists, 16″ on center
7-1/2′ sidewall
1/2″ high strength sheetrock ceiling
GE® Appliances
Metal roller drawer guides
30″ tall overhead cabinets
European hidden hinges
Stainless steel sinks
High impact counter top laminates
GFCI protected receptacles
PEX plumbing system
30 gallon water heater
Brass water shutoff valves
Porcelain commodes
Total electric 200 Amp service
Heat tape outlet for water inlet
100% copper wiring throughout
Interconnected smoke alarms with battery backup
Power vent fans
Residential blown acoustical ceilings
R-11 floor, R-11 sidewall, R-22 ceiling
Mini blinds on all windows
Brushed nickel hardware
Oil Field Living Quarters/Remote Workforce Housing/Rig Camps
NEWS:
China stakes claim to S. Texas oil, gas
CNOOC’s deal with Chesapeake Energy is the largest purchase of an interest in U.S. energy assets by a Chinese company. Chinese investment will boost South Texas drilling Slideshow: China’s hunger for energy
More Information
Chinese investment will boost South Texas drilling
David Hendricks: S. Texas should embrace China’s shale investment
Chinese gobble up Americans’ pecans
Recent Headlines
Foreclosure postings dip
HOUSTON – State-owned Chinese energy giant CNOOC is buying a multibillion-dollar stake in 600,000 acres of South Texas oil and gas fields, potentially testing the political waters for further expansion into U.S. energy reserves.
With the announcement Monday that it would pay up to $2.2 billion for a one-third stake in Chesapeake Energy assets, CNOOC lays claim to a share of properties that eventually could produce up to half a million barrels a day of oil equivalent.
It also might pick up some American know-how about tapping the hard-to-get deposits trapped in dense shale rock formations, analysts said.
As part of the deal, the largest purchase of an interest in U.S. energy assets by a Chinese company, CNOOC has agreed to pay about $1.1 billion for a chunk of Chesapeake’s assets in the Eagle Ford, a broad oil and gas formation that runs largely from southwest of San Antonio to the Mexican border.
CNOOC also will provide up to $1.1 billion more to cover drilling costs.
The deal represents China’s second try at making a big move into the U.S. oil and gas market, following a failed bid five years ago to buy California-based Unocal Corp.
Intense political opposition over energy security concerns derailed that $18.4 billion deal. But analysts expect few political or regulatory hurdles to the CNOOC-Chesapeake deal.
“The climate is much more hospitable now,” said Juli MacDonald-Wimbush, a partner with Marstel-Day, an energy and environmental security consulting company in Fredericksburg, Va.
Amid low natural gas prices and a largely difficult drilling climate, she said highly liquid Chinese companies will find willing partners among onshore oil and gas companies hurting for capital to drill.
————-
Eagle Ford Shale Jobs. The Economic Impact On South Texas
The article The Eagle Ford Shale discusses the Eagle Ford shale play, a major discovery of oil and gas in South Texas. See Eagle Ford Shale Blog for updates on recent developments.
Not Like Past Oil Booms In South Texas
Update: 05/23/2011
As of now there are over 165 rigs drilling in the Eagle Ford shale play and many new producing oil and gas wells, some which are flowing over 2000 barrels per day of crude. More rigs will be coming, as soon as major pipeline projects are completed in the next couple of years. Eagle Ford shale job creation is now in full swing, with scores of new businesses opening up in the region. There are new oilfield related jobs in South Texas in every line of work from welding, heavy equipment operators to frac sand hauling and roughneck jobs. Many South Texas residents are just now realizing that they are sitting on top of one of the largest oil and gas fields in the United States, and that the new boom is going to last for many years and create thousands of new jobs.
Below: On left, photo of new compressor station being constructed along SH-97 near Los Angeles, TX for an Eagle Ford shale natural gas pipeline. The need for infrastructure such as this is creating a huge number of new Eagle Ford shale jobs in all kinds of industries. Right, Stallion has opened a new oilfield business in Tilden, TX providing rental equipment for drilling rigs. The aluminum water pipe you see in the right hand corner is rented to drilling companies to transport Eagle Ford shale frac water from huge open pits to well locations. See What Is A Frac Job?
Why Is The Eagle Ford Shale Discovery Different?
One thing that makes this natural gas play different from past oil and gas booms is the fact that, like the Barnett Shale, there is a very good chance that a well will be productive anywhere in the leasehold area. Drilling wells in the Eagle Ford shale is more like a manufacturing operation than a high risk venture. That’s why lease payments have risen as high as $8000 in some areas, since oil companies know more or less how much oil and gas lies under the property. The blanket – like nature of the shale rock formation, spreading across literally thousands of square miles, ensures that literally thousands of wells will have to be drilled. This translates to thousands of Eagle Ford shale jobs in a variety of fields.
While the Eagle Ford shale is not uniform and has different porosity and quality of oil and gas, depending on where the acreage lies, it is for the most part continuous throughout much of the play. It is composed of three zones, which are productive of natural gas, natural gas and condensate, and crude oil. The “gas and condensate” and “oil windows” in Frio, LaSalle, McMullen, Live Oak, Atascosa and other counties, are the focus of intense drilling activity at the moment. The surface of this oil and gas play has only been scratched, with literally thousands more wells to be drilled over the coming years.
There is already a high need for skilled oil rig workers, service hands, frac sand and gravel truck drivers, pipeline construction crews, water haulers, hotshot delivery service drivers, lease construction workers, heavy equipment operators and more. The number of oilfield jobs in South Texas that is resulting from the Eagle Ford shale discovery is truly amazing and is a well needed shot in the arm for the region, which has seen many oil booms come and go. This boom is defectively going to last for many years for the simple reason that there is so much country to drill up.
Towns that are already oil and gas hubs, such as Alice and Corpus Christi Texas, should get a big boost from the Eagle Ford shale in the coming months. Small towns such as Jourdanton, Pleasanton, Tilden, Three Rivers, Freer (already home to many service companies) and Cotulla are already seeing a number of oilfield jobs created by the upcoming drilling activity. Owners of every type of business are benefitting as royalty checks and oilfield payroll money is pumped back into the local economy. Local tax coffers should see more revenue and this is good news for small town school districts. As money from royalty payments flows into the economy this will create all kinds of jobs not related to oil and gas drilling in South Texas. From new cell phone towers to schools and roads, South Texas is undergoing a massive “makeover”. Not all residents of the region may like it, and not all changes will be good, such as more traffic, but more jobs at better salaries will definitely improve quality of life for many families.
Eagle Ford Bigger Than The Barnett Shale?
Derrick Man Working In the Barnett Shale, Photo of frac tanks used on Eagle Ford shale wells.
Differences Between The Eagle Ford Shale and Barnett Shale
While there are some very big differences in the Barnett Shale and the Eagle Ford shale plays, we should see a similar rate of job creation. Barnett shale wells are much shallower, about 4000 feet shallower on average. The Eagle Ford shale, at least in the middle and northern part of the play, is turning out to hold much more liquids, (oil and condensate), than the Barnett shale. Given the high price of crude oil compared to natural gas, the economic impact of the Eagle Ford could be much greater than the Barnett shale.
Eagle Ford shale wells do cost more than Barnett shale wells to drill, due to depth and because more complex frac jobs are required. However, the cost of drilling wells in the Eagle Ford shale will diminish over time as companies develop and perfect new drilling procedures and an “economy of scale”.
Another factor that makes McMullen, LaSalle, Frio, Atascosa and other South Texas counties an ideal location for a large gas field is the lack of any major cities. In the case of the Barnett shale there are tremendous obstacles to drilling, including subdivisions, roads, golf courses, noise regulations, etc.
Another large headache to oil companies is the incredible number of parcels, some as small as thirty by fifty feet, on which gas royalty payments must be paid to landowners holding mineral rights. Most of the land in South Texas is in the form of large ranches, which simplifies a number of things for operators.
What will the impact on the economy of South Texas be? Perhaps we can look to the Barnett shale for an example. In the Dallas – Fort Worth area it was estimated that the job creation effect in the past five years was equivalent to one Boeing aircraft plant opening every six months. These jobs largely resulted from drilling and completion of horizontal wells, pipeline construction and the trickle down effect on other professions.
In South Texas, as Eagle Ford shale drilling accelerates, there will be all kinds of employment opportunities created besides oilfield jobs. As landowners receive large royalty checks they often use this money for ranch improvements, bigger homes, cars and trucks and so on. This flow of money into the economy is already becoming evident in towns such as Pleasanton and Jourdanton, where new stores are opening up.
For an area of the country that has seen it’s share of boom and bust oil activity, the Eagle Ford shale formation discovery will mean quite a few lasting jobs. If you are about to graduate from high school, and intend on staying in South Texas, you may want to consider furthering your education to prepare yourself for one of the types of jobs that are being created by this major oil and gas field.
Return to main article about the Eagle Ford Shale: The Eagle Ford Shale
2011 OK TRUCK & TRAILER Oilfield Dog House Trailer for sale in …
…/2011-OK-TRUCK-&-TRAILER… View photos and details for this quality 2011 OK TRUCK & TRAILER Oilfield Dog House Trailer for sale in Oklahoma City, OK. View this and other Cargo Trailer …
Oilfield Dog House – Dog House Rigs
TOP /oilfield-equipment/dog-house.html An Oilfield Dog House serves as an on-site headquarters for oilfield operations. ITI oilfield dog houses are customized to make your job easier.
Oil Field Trailers –
Dog house Trailers for oil field uses enclosed or utility trailers built for your Race or camping specialty serving Waco Texas, Dallas Texas, Austin Texas, best …
dog house: Schlumberger Oilfield Glossary
s. Seismic. Marine Seismic Acquisition; Land Seismic Acquisition; Seismic Data …
Oilfield Equipment
Thank You For Visiting Oilfield Equipment Section Of Our …. Double Drum With Spudding Attachment, 25′ Mud Boat & Dog House On Trailer, …
Dog House/Water Tanks – World Wide Oil Field Sales
We have a wide selection of Dog Houses / Water Tanks. 3. Water tank/dog house Combo $18000.00. 4. Water tank/dog house $16000.00. 5. Water tank/dog …
| Oil Field-DogHouseTrailer.MOV – YouTube |
| www.youtube.com/watch?v=PCotgv4rziYSep 6, 2011 – 2 min – S |
More videos for oilfield dog houses »
DOG HOUSE – Drilling Equipment –
TOP DOG HOUSE 8’H X 10’W X30’L W/ KNOWLEDGE BOX & BENCH … Used oil drilling rigs, surplus oilfield equipment, oil and gas equipment and more from …
Odessa Industrial Ductwork Refractory Blankets Oil Field Dog Houses
sozaconstruction.com/services.nxg Soza Construction In Odessa TX Provides Quality Workmanship And Reliable Service For Industrial Ductwork, Refractory Blankets And Oil Field Dog Houses.
Doghouse –
Classifieds drilling, drilling rigs, workover rigs, oilfield equipment, compressors, coiled tubing units. List Equipment – drilling rigs,pulling units,pumpjacks,oilfield trucks,more.
While there are some very big
differences in the Barnett Shale and the Eagle Ford shale plays, we should see a
similar rate of job creation. Barnett shale wells are much shallower, about 4000
feet shallower on average; The Eagle Ford shale, at least in the middle
and northern part of the play, is turning out to hold much more liquids,
(oil and condensate), than the Barnett shale. Given the high price of crude oil
compared to natural gas, the economic impact of the Eagle Ford could be much
greater than the Barnett shale.
The formation is named after John W. Barnett who settled in San Saba County during the late 19th century where he named a local stream the Barnett Stream. During the early 20th century during a geological mapping exercise geologists noted a thick black organic-rich shale in an outcrop close to the stream. The shale was consequently named the Barnett Shale.
The Barnett shale has acted as a source and sealing cap rock for more conventional oil and gas reservoirs in the area. It was thought that only a few of the thicker sections close to Fort Worth would be able to support economic drilling, until new advances in horizontal drilling were developed in the 1980s. Techniques such as fracturing, or “fracking”, wells, used by Mitchell Energy, opened the possibility of more large scale production.Even with new techniques, significant drilling did not begin until gas prices increased in the late 1990s.
Well completion
Barnett Shale gas drilling rig near Alvarado, Texas (2008)
Two key developments in well design and completions have fostered development of the Barnett Shale. These are horizontal, or “slant” drilling, and hydraulic fracturing. In addition, changes to the Clean Water Act made in the 2005 Energy Policy Act exempt natural gas explorers from disclosing what chemicals they use in hydraulic fracturing, allowing those explorers to avoid costly regulatory oversight.
Horizontal drilling
As of 2007, recent advances in the technology of horizontal drilling, or “slant” drilling, have opened up the potential of the Barnett Shale as a major source of natural gas. Horizontal drilling has changed the way oil and gas drilling is done by allowing producers to drill horizontally beneath neighborhoods, schools and airports. Much of the gas in the Barnett Shale is beneath the City of Fort Worth. The new technology has attracted a number of gas-production companies.
In addition to extended reach, horizontal drilling may increase production. In “tight” rock (low permeability) like the Barnett Shale, the gas uses fractures to move out of the rock and into the wellbore. The fractures may be natural or induced (see below). A horizontal well exposes more rock (and therefore more fractures) to the wellbore because it is usually designed with the horizontal portion of the well in the productive formation.
In 2005–2007 horizontal drilling in the Barnett Shale extended south into Johnson, Hill, and Bosque counties, with a 100% success rate on completed wells. An experimental vertical well is being drilled in McLennan County (near Waco) to assess the potential for drilling along the Ouachita Fold, a geological barrier which defines the southern limit of the Barnett Shale.
Hydraulic fracturing
Hydraulic fracturing carried out in the Barnett Shale is done by pumping a mixture of water, sand, and various chemical additives (to affect viscosity, flow rates, etc.) into the well bore at a sufficient pressure to create and propagate a fracture in the surrounding rock formation down hole. This is crucial in low permeability rock as it exposes more of the formation to the well bore and greater volumes of gas can be produced by the increased surface area. Without hydraulic fracturing, the wells would not produce at an economically feasible rate.
Scientists at the Jackson School of Geosciences at the University of Texas at Austin, who have worked closely with producing companies to develop the Barnett play, also see potential for conflict in some parts of the Barnett where water use for hydraulic fracturing could begin competing with other uses such as drinking and agriculture.
The process of hydraulic fracturing generates significant criticism. Opponents allege that it is inadequately monitored and poses significant threats to water and air quality in surrounding areas, and cite a growing body of scientific evidence.


























We bring you the best first hand supplier when it comes to Oilfield Houses, Modular homes and many more.

