Flexible Foundations: Container Housing Solutions for a Mobile Workforce
In today’s dynamic work environment, the ability to quickly adapt and relocate resources is paramount. Whether it’s responding to project demands in a new location, providing temporary housing for seasonal workers, or establishing facilities in remote areas, the need for flexible and rapidly deployable infrastructure is growing. Enter container housing – a smart and sustainable solution that’s revolutionizing workforce accommodations and facilities.
Imagine setting up comfortable and functional living quarters, fully equipped kitchens, efficient laundry facilities, productive office spaces, or welcoming break rooms with remarkable speed and ease. This is the promise of container-based construction. By repurposing robust shipping containers, we can create durable, secure, and easily transportable modules that can be configured to meet a wide range of needs.
The Agility Advantage: Move and Mobilize with Ease
One of the most compelling benefits of container housing is its inherent mobility. Designed for global transport, these structures can be readily moved via truck, train, or ship, allowing for seamless relocation to new project sites or operational hubs. This agility translates to significant advantages:
- Rapid Deployment: Compared to traditional construction, container units can be prepared off-site and swiftly installed upon arrival, minimizing disruption and accelerating project timelines.
- Reduced Infrastructure Costs: The modular nature of container housing can lessen the need for extensive on-site infrastructure development, leading to potential cost savings.
- Adaptability and Scalability: Whether you need a single office unit or a multi-unit complex, container solutions can be scaled and adapted to your specific requirements. Units can be easily added or reconfigured as your needs evolve.
- Sustainability: Repurposing shipping containers is an environmentally responsible choice, giving these robust structures a new lease on life and reducing construction waste.
From Bedrooms to Break Rooms: Versatility in Design
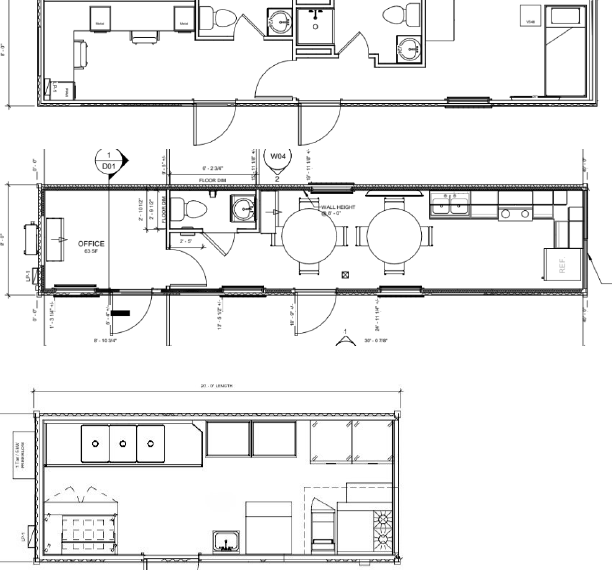
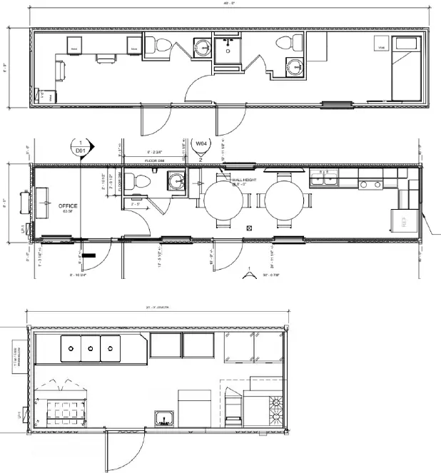
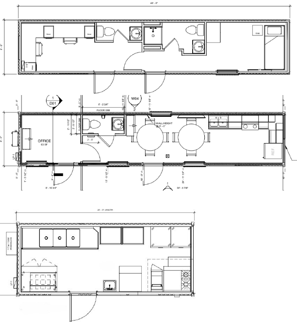
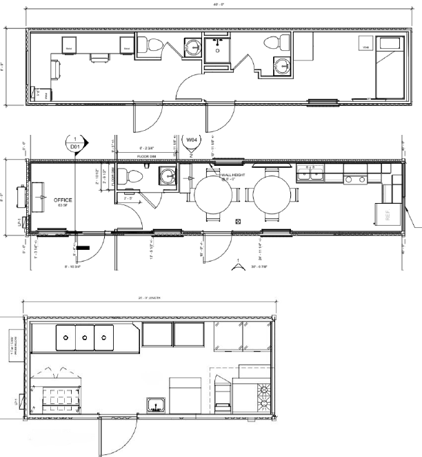
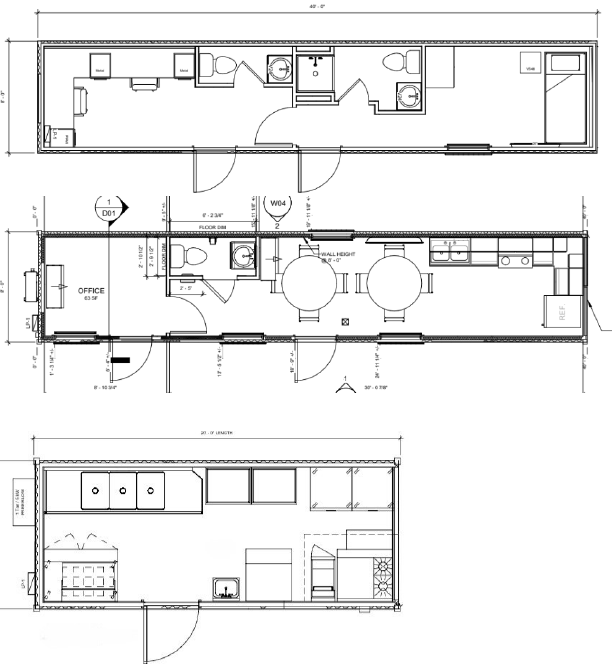
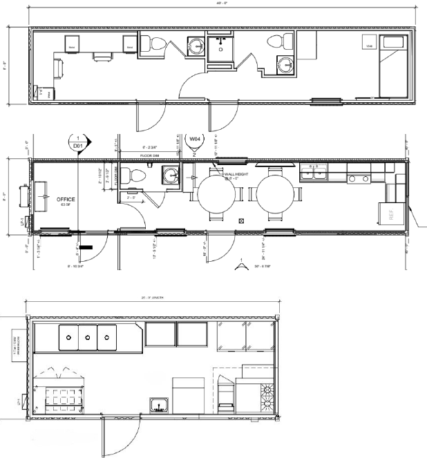
The beauty of container housing lies not only in its mobility but also in its versatility. As your uploaded images showcase, these modular units can be transformed into a variety of functional spaces:
- Comfortable Bedroom Units: Providing a secure and private space for rest and rejuvenation is crucial for workforce well-being. Container bedrooms can be designed with single or multiple occupancy, incorporating essential amenities for comfortable living.
- Efficient Kitchen and Dining Facilities: From compact kitchenettes to full-service catering setups, container units can be equipped with all necessary appliances and fixtures to support your team’s culinary needs.
- Convenient Laundry Facilities: On-site laundry units offer a practical amenity for longer-term deployments, enhancing the comfort and convenience of workforce housing.
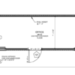
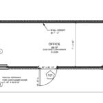
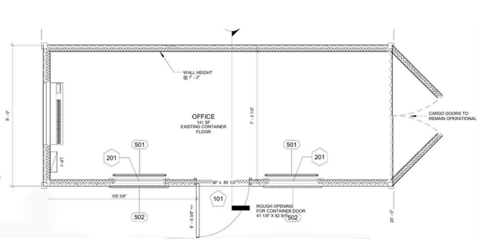
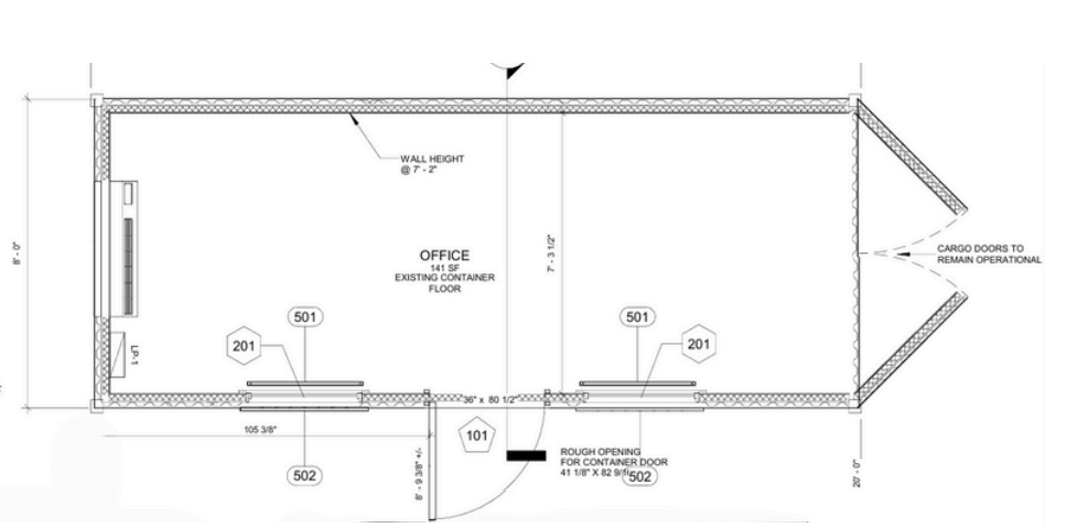
- Productive Office Spaces: Creating functional and well-equipped office environments is essential for maintaining productivity. Container offices can be customized with workstations, meeting areas, and necessary utilities.
- Welcoming Break Rooms: Providing a dedicated space for relaxation and informal interaction can boost morale and team cohesion. Container break rooms can be designed for comfort and functionality.
[Image Gallery Here: Showcase your uploaded images of bedroom units, kitchens, offices, laundry, and break room setups.]
The Future of Flexible Workforce Solutions
As businesses and organizations increasingly prioritize agility and sustainability, container housing emerges as a powerful solution for workforce needs. Its inherent mobility, versatility in design, and rapid deployment capabilities make it an ideal choice for a wide range of applications. By embracing this innovative approach, companies can ensure their workforce has comfortable, functional, and easily adaptable accommodations and facilities, wherever their work takes them.
BPK Housing LLC solutions for the modern workforce

































We bring you the best first hand supplier when it comes to Oilfield Houses, Modular homes and many more.

